Kendall Square 1Br Nr Mit Bos-718

195 Binney St, Cambridge, Ma 02142, Usa, Boston, United States - Show on map

Kendall Square 1Br Nr Mit Bos-718 Boston apartment is located about a 20-minute walk from the multi-purpose TD Banknorth Garden Arena and 2.3 km from the historic indoor-outdoor shopping center "Faneuil Hall Marketplace".

Location

Freedom Trail is 2.1 km away, while Cambridge Antique Market is right near this apartment. The city centre is just 3 km away and Logan airport is 10 km from the apartment.

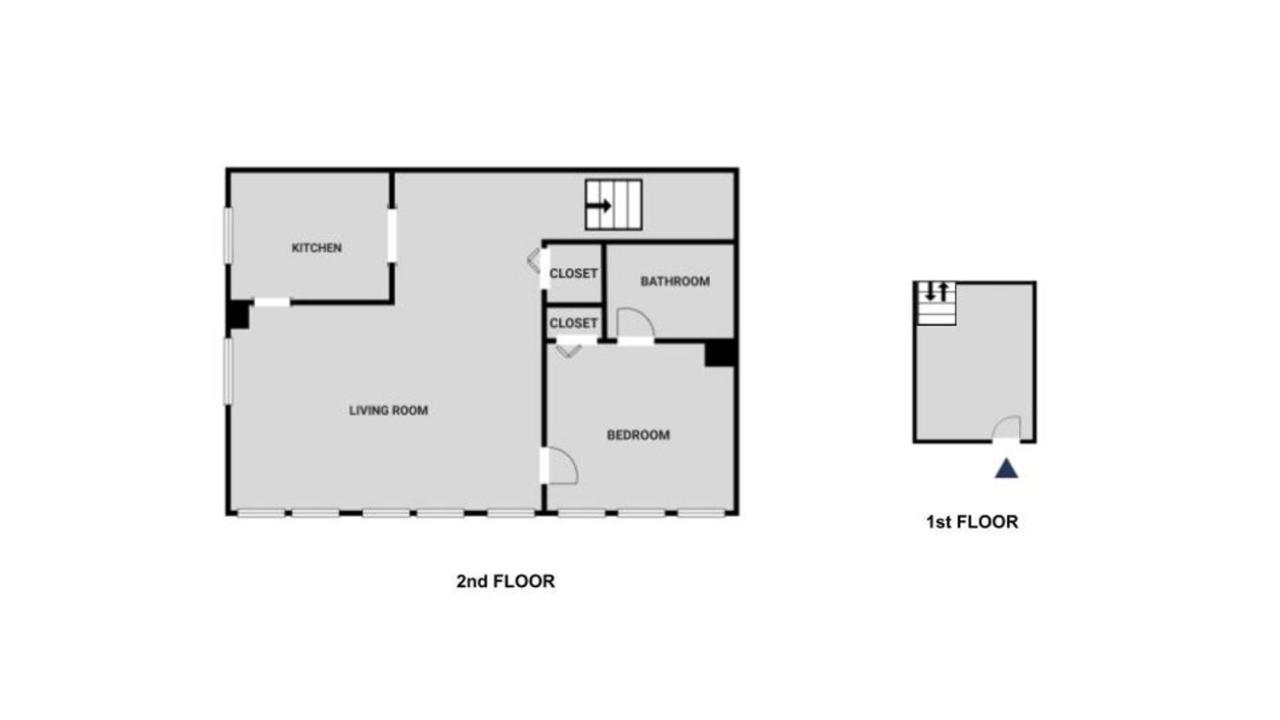
Rooms

Guests staying in this apartment will enjoy the convenience of hair dryers and bath sheets in the bathroom.

Food & Drinks

To enhance your comfort, Kendall Square 1Br Nr Mit Bos-718 apartment comes with a microwave, coffee and tea makers, and kitchenware. The restaurant Royal Punjab is located fairly close to the accommodation. The property is also 250m from EZRide - Otis St bus stop and within 15 minutes' walk of Kendall/MIT underground station.

Why choose Kendall Square 1Br Nr Mit Bos-718 Boston

Select room

Main amenities

  • Internet

  • Fitness/Gym

  • Air conditioning

  • Pets

General
  • Internet
  • Fitness/Gym
  • Air conditioning
  • Pets

Internet

  • Free Wi-Fi
  • Wi-Fi in rooms

Parking options

  • Parking

Activities

  • Fitness centre

In the kitchen

  • Cookware/ Kitchen utensils

Recreation

  • BBQ facilities
  • Leisure/ TV room

In the rooms

  • Air conditioning
  • Heating
  • Tea and coffee facilities
  • Ironing facilities

In the bathroom

  • Free toiletries

General facilities

  • No smoking on site
  • Lift

Pets

  • Pets allowed

Important information

Check-in:
from 16:00 until 22:00
Check-out:
until 11:00

Enter dates to see availability

From USD 0 per night
Check-in 26 Nov 2025
Check-out 27 Nov 2025
Guests 2 guests

Adults:

2

Children:

0
Special offers & deals Limited offer

Summer Deal

Up to 15% off
Make the most of summer with up to 15% off and free breakfast – limited-time offer.

Family Package Deal

Up to 20% off
Save up to 20% with special family packages that include your stay, meals, and fun for the kids..

Members Only Rate

Up to 15% off
Join now to unlock up to 15% off on your dates – visible to members only.

Mobile-Only Deal

An exclusive discount – get up to 10% off when you book from your phone.

Early Booking Discount

Up to 20% off
Save up to 20% when you book at least 30 days before your trip.

Rooms

Photos of Kendall Square 1Br Nr Mit Bos-718 Boston

Location of Kendall Square 1Br Nr Mit Bos-718 Boston

195 Binney St, Cambridge, Ma 02142, Usa, Boston, United States

Attractions
Great restaurants
Transportation

Places nearby

    Guest reviews of Kendall Square 1Br Nr Mit Bos-718 Boston

    Write a review

    When did you travel?

    Your rating point

    Very bad
    Excellent

    Your details

    Where are you from?
    Thank you! Thank you for taking the time to share your experience. Your review will be published shortly.

    Review has not been sent.

    Please try again.

    Currency
    • USD U.S. dollar
    • EUR Euro
    • GBP Pound sterling
    • AUD Australian dollar
    • CAD Canadian dollar
    • BRL Brazilian real
    • BGN Bulgarian lev
    • CNY Chinese yuan
    • CZK Czech koruna
    • DKK Danish krone
    • HKD Hong Kong dollar
    • ILS Israeli new sheqel
    • JPY Japanese yen
    • MYR Malaysian ringgit
    • NZD New Zealand dollar
    • NOK Norwegian krone
    • PLN Polish zloty
    • RON Romanian leu
    • RUB Russian ruble
    • SAR Saudi riyal
    • SGD Singapore dollar
    • ZAR South African rand
    • KRW South Korean won
    • SEK Swedish krona
    • CHF Swiss franc
    • TRY Turkish lira
    • UAH Ukrainian hryvnia
    • THB Thai baht
    Select language
    Enter dates to see availability
    From USD 0 per night
    Check-in 26 Nov 2025
    Check-out 27 Nov 2025
    Guests 2 guests

    Adults:

    2

    Children:

    0
    Check-in & out
    26 Nov 2025
    27 Nov 2025
    Guests
    2 guests
    Contact Us
    Kendall Square 1Br Nr Mit Bos-718
    Your details
    Subject:
    Message:
    Your message has been sent
    Your message was not delivered

    Details:

    195 Binney St, Cambridge, Ma 02142, Usa, Boston, United States

    Important information
    Kendall Square 1Br Nr Mit Bos-718
    Check-in:
    from 16:00 until 22:00
    Check-out:
    until 11:00